4-Zimmer-Penthouse mit Dachterrasse in Graz Puntigam

Penthousewohnung TOP 08

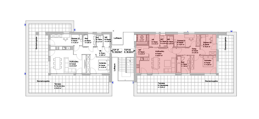
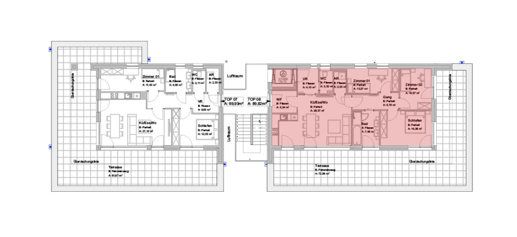
Luxus pur – das größte Penthouse in der Laubgasse 73. Das Penthouse TOP 08 bietet ca. 89,4 m² Wohnfläche und eine großzügige Dachterrasse mit rund 73 m². Mit drei Schlafzimmern, einem offenen Wohn-Essbereich und Kaminanschluss ist es ideal für Familien, die höchsten Wohnkomfort schätzen.

  • Wohnraum 89,40 m²

  • Terasse 73 m²

  • Stockwerk 2. Obergeschoss

  • Verkaufspreis € 699.698

  • Fertigstellung Juni 2026

  • Verkaufspreis € 699.698

  • 2 Parkplätze (optional) € 50.000

  • Mietpreis € 1482

  • Betriebskosten (Exkl. Strom & Heizung) € 247

Die dargestellten Visualisierungen dienen ausschließlich der Illustration und können von der tatsächlichen Ausführung abweichen. Wir behalten uns vor Änderungen in Projekt vornehmen zu können. Abgebildete Möbel und Einrichtungsgegenstände stellen Vorschläge dar und sind nicht im Kaufpreis enthalten.

Bei einem frühzeitigen Kauf haben Käufer die Möglichkeit, bestimmte Ausstattungsdetails individuell zu wählen, darunter:

  • Bodenbeläge (z. B. Parkett, Fliesen)

  • Innentüren und Türbeschläge

  • Sanitärausstattung (Armaturen, Fliesenfarben)

  • Elektroausstattung (z. B. zusätzliche Steckdosen, Lichtauslässe)

  • Wandfarben und Gestaltungselemente

So entsteht Ihr ganz persönliches Zuhause – nach Ihren Wünschen und Vorstellungen.

Durchdachter Grundriss

  • Offener Wohn-Essbereich mit Küche (ca. 28 m²) – lichtdurchflutet, direkter Zugang zur Dachterrasse.

  • Drei Schlafzimmer (ca. 14,4 m², 10,4 m² und 10,7 m²) – ideal für Familien, Gäste oder Home-Office.

  • Großzügiges Badezimmer (7,5 m²) mit moderner Ausstattung, separates WC.

  • Abstellraum sorgt für Ordnung.

Dachterrasse – Ihr privates Paradies

Die ca. 73 m² große Dachterrasse bietet Sonne, Weitblick und Privatsphäre. Ob stilvolle Outdoor-Lounge, Familienbereich oder Rückzugsort – hier entsteht Ihre ganz persönliche Wohlfühloase.

Wohnen mit Exklusivität

Als größte Einheit des Projekts ist TOP 08 das Prestige-Penthouse der Laubgasse 73. Es kombiniert großzügige Wohnflächen mit exklusiven Außenbereichen – eine Rarität am Grazer Immobilienmarkt und eine wertbeständige Investition.

Parkplatz mit E-Lademöglichkeit & optionaler Photovoltaik

Für jede Penthousewohnung besteht die Möglichkeit, 2 Stellplätze direkt im Gebäude zu erwerben. Davon in ein Parkplatz ist bereits für eine E-Ladestation vorbereitet, die individuell mit der jeweiligen Wohnung verbunden und geschaltet werden kann. Besonders attraktiv: Es besteht zusätzlich die Option, eine eigene Photovoltaikanlage zu installieren – so kann der erzeugte Strom direkt zum Laden des Fahrzeugs oder für den Eigenverbrauch genutzt werden.

Außenansicht des Neubauprojekt Laubgasse 73 in Graz mit der Penthousewohnung TOP 08 im Fokus

Fußbodenheizung in allen Räumen

Hochwertige Parkett- und Fliesenböden

3-fach verglaste Fenster mit Sonnenschutz

Raumbelüftung

Option auf Parkplatz mit Elektrostormversorung

Begrünung im Garten

Graz Puntigam

8055 Graz Laubgasse 73

  • Supermarkt: 324 m
  • Bäckerei: 724 m
  • Bus: 450 m
  • Straßenbahn: 300 m
  • S-Bahn: 650 m
  • Autobahn: 3500 m
  • Arzt: 711 m
  • Krankenhaus: 1309 m
  • Kindergarten: 915 m
  • Apotheke: 1000 m
  • Schule: 642 m
  • Mur-Radweg: 570 m
  • Stadtstrand: 1200 m
  • Seifenfabrik: 1200 m
  • Jugendzentrum: 1200 m
  • Sportpark: 1200 m
Zum Gebäude
Zum Gebäude

Schnelle Anfrage

Kontaktieren sie uns