2-Zimmer-Wohnung mit Terrasse in Graz Puntigam

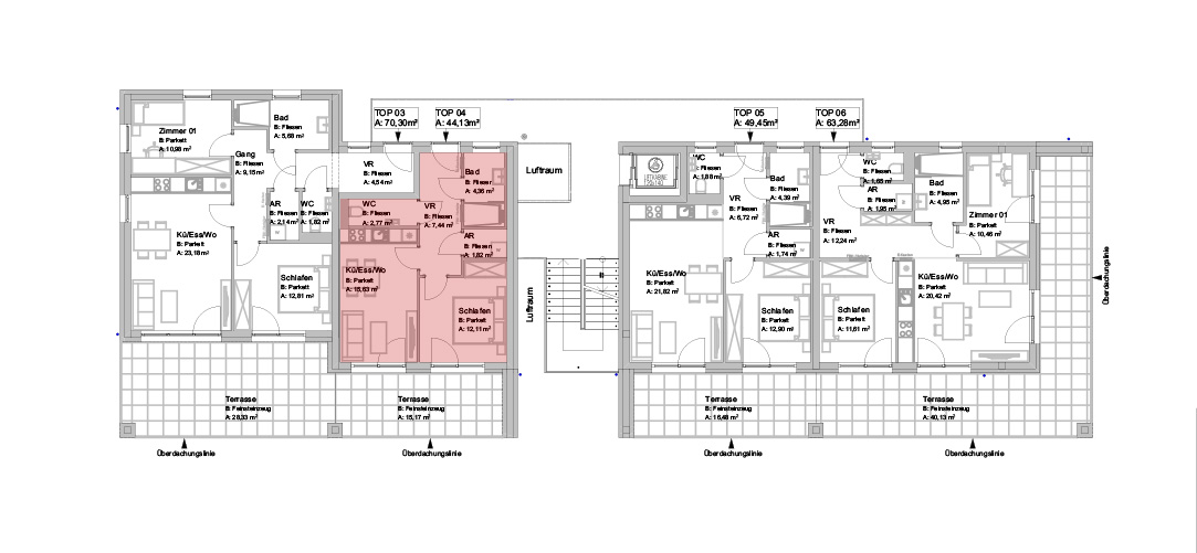
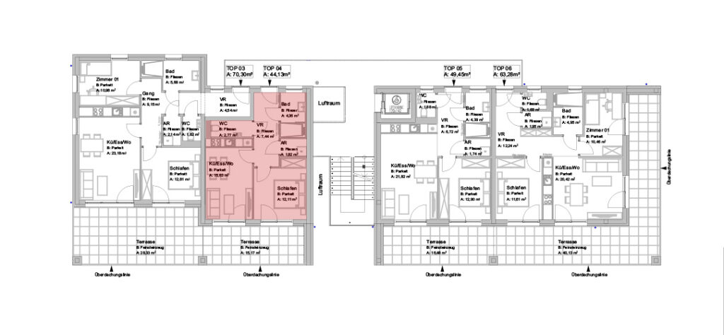
Etagenwohnung TOP 04

Kompakt & clever – mitten in der Stadt. Die Etagenwohnung TOP 04 in der Laubgasse 73 bietet ca. 44,1 m² Wohnfläche und eine gemütliche Terrasse (15 m²). Mit einem offenen Wohn-Essbereich und einem Schlafzimmer ist sie die ideale Wohnung für Singles, Paare oder Anleger, die eine moderne, effizient geschnittene Wohnung in Graz suchen.

  • Wohnraum 44,1 m²

  • Terasse 15 m²

  • Stockwerk 1. Obergeschoss

  • Fertigstellung Juni 2026

  • Verkaufspreis € 238.302

  • 1 Parkplatz (optional) € 25.000

  • Mietpreis € 582,50

  • Betriebskosten (Exkl. Strom & Heizung) € 121,40

Die dargestellten Visualisierungen dienen ausschließlich der Illustration und können von der tatsächlichen Ausführung abweichen. Wir behalten uns vor Änderungen in Projekt vornehmen zu können. Abgebildete Möbel und Einrichtungsgegenstände stellen Vorschläge dar und sind nicht im Kaufpreis enthalten.

Bei einem frühzeitigen Kauf haben Käufer die Möglichkeit, bestimmte Ausstattungsdetails individuell zu wählen, darunter:

  • Bodenbeläge (z. B. Parkett, Fliesen)

  • Innentüren und Türbeschläge

  • Sanitärausstattung (Armaturen, Fliesenfarben)

  • Elektroausstattung (z. B. zusätzliche Steckdosen, Lichtauslässe)

  • Wandfarben und Gestaltungselemente

So entsteht Ihr ganz persönliches Zuhause – nach Ihren Wünschen und Vorstellungen.

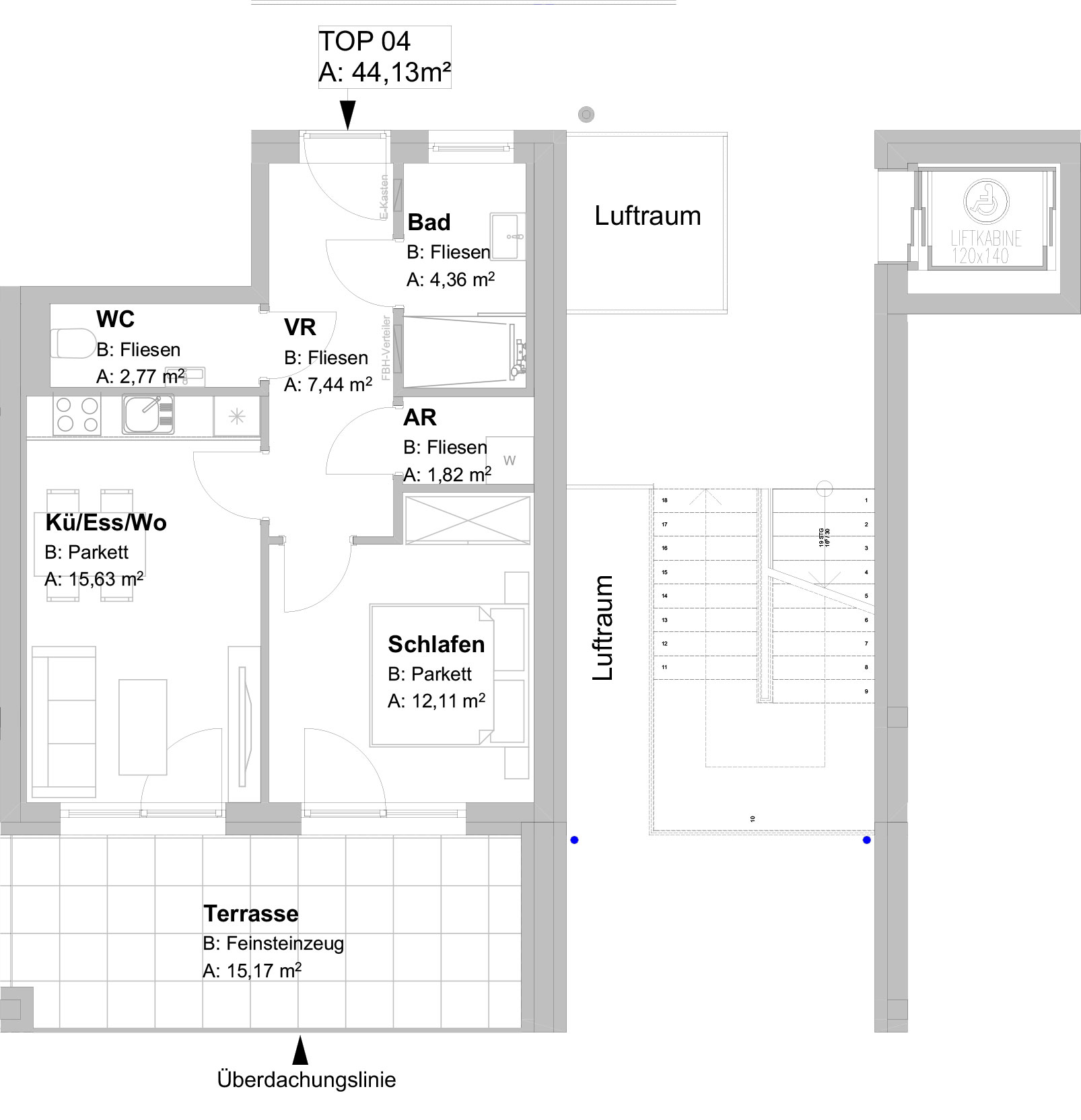
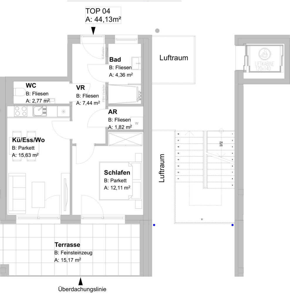
Durchdachter Grundriss

Die Wohnung TOP 04 ist mit ca. 44,1 m² Wohnfläche kompakt, aber optimal aufgeteilt.
Vom Vorraum gelangen Sie direkt in den offenen Wohn-Essbereich mit Küche (ca. 15,6 m²). Großzügige Fensterflächen sorgen für viel Licht und schaffen eine freundliche Atmosphäre.
Das Schlafzimmer (ca. 12 m²) bietet genügend Platz für ein Doppelbett und Schrank.
Das moderne Badezimmer (4,4 m²) ist funktional gestaltet, mit Dusche und WC kombiniert. Ein kleiner Abstellbereich im Vorraum sorgt für zusätzlichen Stauraum.

Das moderne Badezimmer ist mit Dusche ausgestattet, das WC befindet sich separat. Praktisch: Ein eigener Abstellraum in der Wohnung sorgt für Ordnung und zusätzlichen Stauraum.

Die Terrasse – Ihre private Wohlfühloase

Besonders hervorzuheben ist die 15 m² große Terrasse, die direkt vom Wohnbereich zugänglich ist. Sie erweitert den Lebensraum ins Freie und eignet sich perfekt für gemütliche Stunden im Freien – ob beim Frühstück in der Morgensonne oder beim Abendessen im Freien. Dank der südseitigen Ausrichtung genießen Sie hier Licht und Sonne den ganzen Tag.

Modernes Wohnen im kleinen Format

TOP 04 ist die perfekte Wahl für Singles oder Paare, die eine kompakte, moderne Wohnung in Graz suchen. Auch als Anlegerwohnung ist sie äußerst attraktiv: Mit ihrer Größe, Lage und effizienten Raumaufteilung bietet sie ideale Voraussetzungen für eine nachhaltige Wertanlage am Grazer Immobilienmarkt.

Parkplatz mit E-Lademöglichkeit

Für jede Wohnung besteht die Möglichkeit, einen Stellplatz direkt im Gebäude zu erwerben. Jeder Parkplatz ist bereits für eine E-Ladestation vorbereitet, die individuell mit der jeweiligen Wohnung verbunden und geschaltet werden kann. 

Außenansicht des Neubauprojekt Laubgasse 73 in Graz mit der Etagenwohnung TOP 04 im Fokus

Fußbodenheizung in allen Räumen

Hochwertige Parkett- und Fliesenböden

3-fach verglaste Fenster mit Sonnenschutz

Raumbelüftung

Option auf Parkplatz mit Elektrostormversorung

Begrünung im Garten

Graz Puntigam

8055 Graz Laubgasse 73

  • Supermarkt: 324 m
  • Bäckerei: 724 m
  • Bus: 450 m
  • Straßenbahn: 300 m
  • S-Bahn: 650 m
  • Autobahn: 3500 m
  • Arzt: 711 m
  • Krankenhaus: 1309 m
  • Kindergarten: 915 m
  • Apotheke: 1000 m
  • Schule: 642 m
  • Mur-Radweg: 570 m
  • Stadtstrand: 1200 m
  • Seifenfabrik: 1200 m
  • Jugendzentrum: 1200 m
  • Sportpark: 1200 m
Zum Gebäude
Zum Gebäude

Schnelle Anfrage

Kontaktieren sie uns