2-Zimmer-Wohnung mit Terrasse in Graz Puntigam
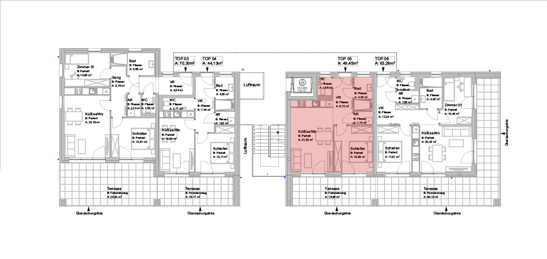
Etagenwohnung TOP 05
Modern & sonnig – mitten in der Stadt. Die Etagenwohnung TOP 05 in der Laubgasse 73 bietet ca. 48,8 m² Wohnfläche und eine Terrasse mit 16 m². Mit einem offenen Wohn-Essbereich und einem Schlafzimmer ist sie ideal für Singles, Paare oder Anleger, die eine kompakte und moderne Wohnung in Graz mit viel Licht und Freiraum suchen.