2-Zimmer-Wohnung mit Terrasse & Garten in Graz Puntigam
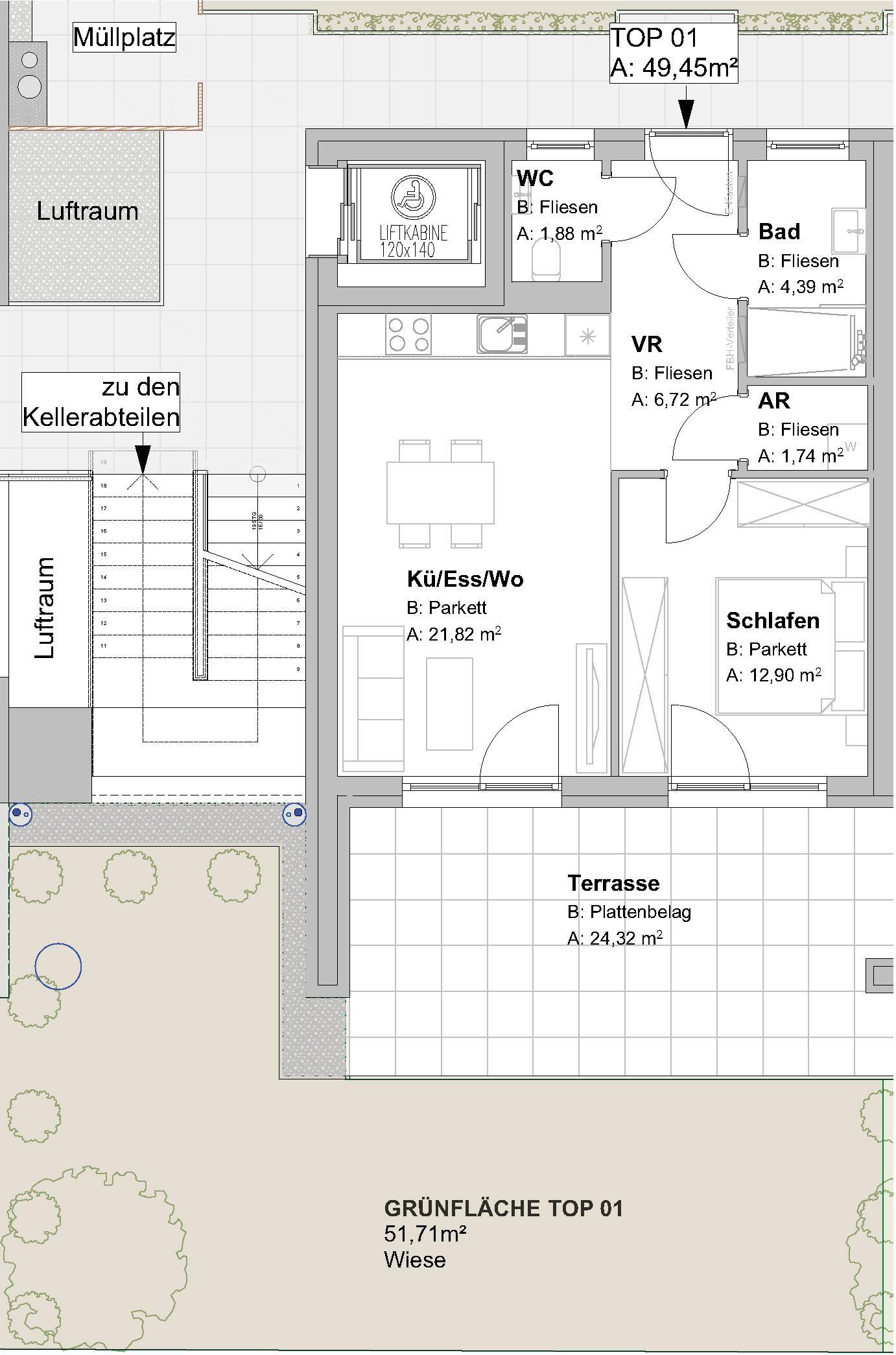
Gartenwohnung TOP 01
Wohnen im Grünen – mitten in der Stadt. Die Gartenwohnung TOP 01 in der Laubgasse 73 bietet auf ca. 48,8 m² Wohnfläche, einer großzügigen Terrasse (24 m²) und einem privaten Garten (52 m²) den perfekten Rückzugsort für Singles, Paare oder Anleger.